
Revitalisationofanindustrialhall
Törökbálint, Hungary
Typology
Office / WorkshopSize
1205 m² GFAValue
350.000.000 HUFStatus
DesignOur Involvement
Developer (Stage 0-7): Design & Build / SustainabilityEquinox Team
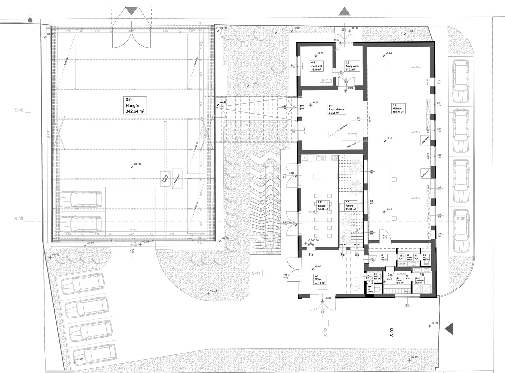
Ádám Szekér, Zsófia Berczi, Bálint Bakos, András Bancsó, Tibor Homlok, Pál KosikThe selected site for our Equinox headquarters within the Mechanikai Művek industrial zone, proximate to Törökbálint, comprises two pre-existing structures—a workshop and a storage facility—both of which our team intends to integrate into our architectural vision. Our overarching objective with this endeavour is to establish a unified and collaborative workspace, fostering symbiotic interaction among our designers and constructors, thereby enabling the seamless exchange of knowledge on-site.
Our approach involves the revitalisation of the storage facility, while simultaneously embarking upon a two-story expansion of the workshop building. This expansion is undertaken to accommodate the requisite office space, ensuring the cohesive alignment of our team members within a single architectural setting.
At the core of our design concept lies the notion of transparency, facilitating the visual and spatial connection between design and construction. This deliberate emphasis underscores the importance of communication and collaborative efforts among our team members.



