
Transitionalzonesagainstoverheating
Budapest, Hungary
Typology
ResidentialSize
1375 m² GFAValue
600.000.000 HUFStatus
Under ConstructionOur Involvement
Architectural Design (Stage 0-4) & SustainabilityEquinox Team
Balázs Fürtön, Ádám Szekér, Bálint Bakos, Noémi Bakos, Bayan NasriClient
CLC ConstructStructural Design
Zoltán LászlóMechanical Engineer
Bence PártlElectrical Engineer
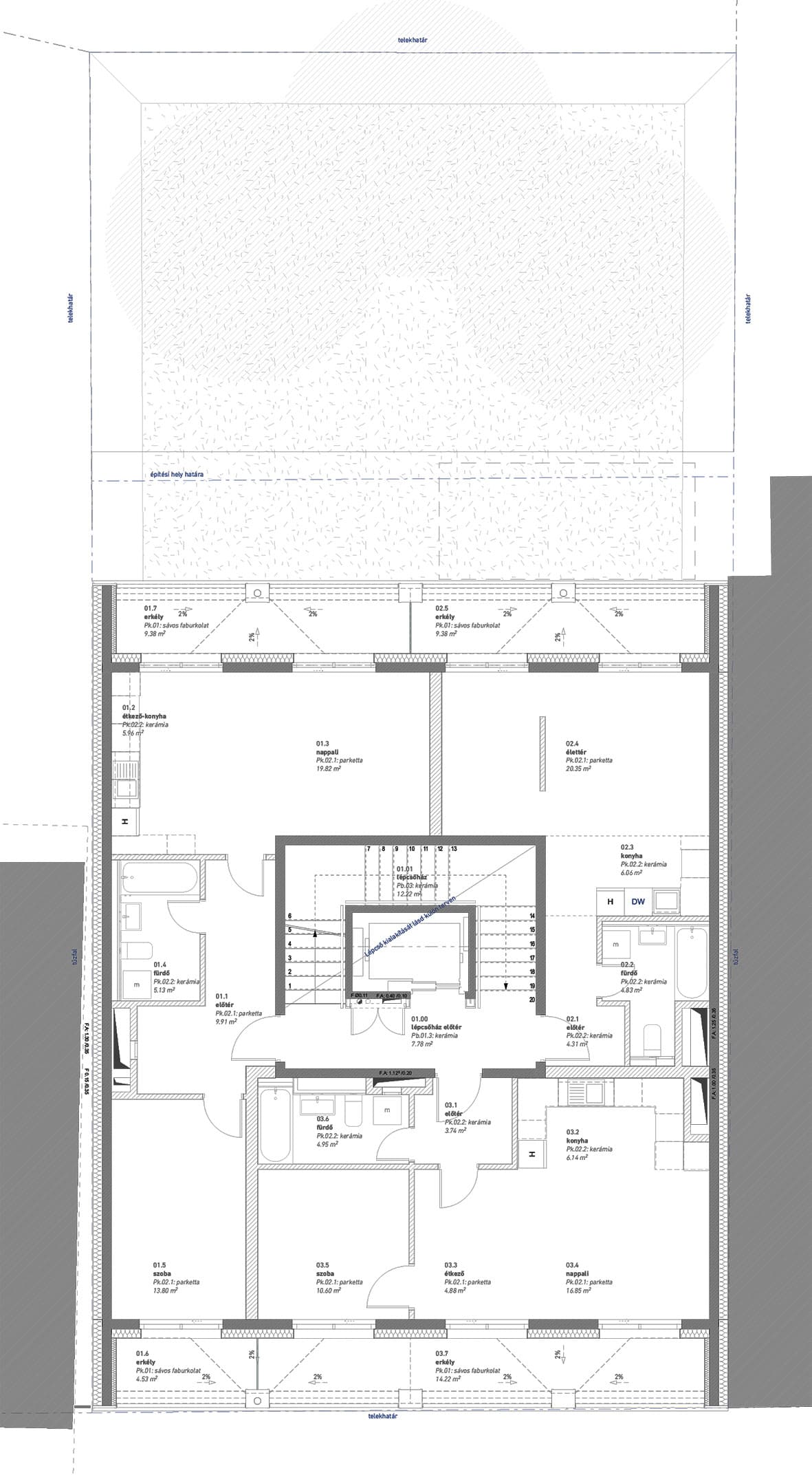
Péter DudásEquinox has designed a multi-residential building consisting of 16 units, strategically situated in a diverse neighbourhood of Budapest near Puskás Ferenc Stadium. In this urban context, the building's facade adopts a structured grid pattern, featuring expanded sheet steel panels and reinforced concrete slabs. To introduce warmth and character, wooden windows and terrace cladding have been incorporated.
Our primary objective was to create transitional areas on both sides of the building to facilitate ventilation along the NE and NW axes during the summer months, thus preventing overheating within the flats. Additionally, all apartments are equipped with spacious loggias, offering ample outdoor living space. This design feature allows residents to enjoy the outdoors year-round, accommodating the Hungarian climate.













